Quadrilocale in vendita

Collecchio, Via Praga
€ 390.000
4 locali 4 locali
137 Mq 137 Mq
2 bagni 2 bagni

Quadrilocale in vendita

Collecchio, Via Praga

Descrizione annuncio

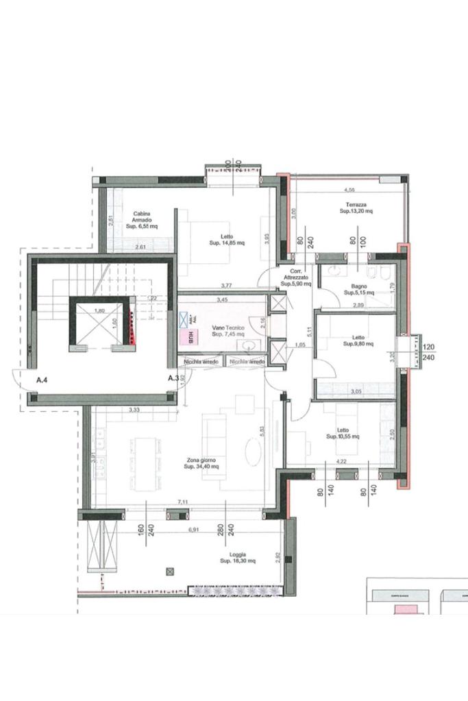
COLLECCHIO, in zona centrale comoda a tutti i servizi del paese di Collecchio, poponiamo ultime soluzioni disponibili in cantiere con consegna estate 2026.

Per chi ama terrazzi e balconi, l'appartamento al primo piano con godibili sfoghi esterni offre spazi ampi e ben distribuiti, una zona giorno luminosa con loggia, ed una zona notte con tre camere ed un terrazzo, ed è l'ideale per chi cerca funzionalità ed originalità.

Classe energetica A4, ottimo capitolato con impianto fotovoltaico e batterie di accumulo comprese. Possibilità di un comodo garage.

Questo appartamento rappresenta una soluzione abitativa all'avanguardia.

Mostra tutto

Nelle vicinanze

Trasporto pubblico Trasporto pubblico
Collecchio
Collecchio
1,3 Km
Trasporto pubblico
920 m
Scuole Scuole
Istituto “E. Guatelli”
960 m
Farmacia Farmacia
Farmacia Comunale
120 m
Ospedali Ospedali
Assistenza Volontaria di Collecchio
900 m
Supermercati Supermercati
COOP Collecchio
80 m
Bar Bar
Bar
870 m
Lino's Coffee
960 m
Il chiosco
1,1 Km
Bar Centrale
1,1 Km
Bar La Fenice
1,2 Km
Ristoranti Ristoranti
Il Melograno
320 m
Porfido
850 m
Villa Maria Luigia
1,1 Km
Trattoria Le Valli
1,4 Km
Ristorante Pizzeria Il Bacio
1,6 Km
Mostra tutto

Caratteristiche

Rif.:
61137451
Piano:
1 di 2 con ascensore (Piano medio)
Balconi:
1
Terrazzi:
1
Camere da letto:
3
Arredamento:
Assente
Mostra tutto
Prezzo Prezzo
€ 390.000
Rata mutuo Rata mutuo
€ 1.853 / mese
Spese annue Spese annue
€ 1
Proponi il tuo prezzoProponi il tuo prezzo

Classe Energetica

A4
A4
A4
A4
A4
A4
A4
A4
A4
EP globale non rinnovabile:
12.00 kW h/m² anno
EP globale rinnovabile:
12.00 kW h/m² anno
EP invernale del fabbricato:
EP estiva del fabbricato:
Anno di costruzione:
2025
Riscaldamento:
Autonomo
Tipo impianto:
Ad aria
Tipo alimentazione:
Pannelli

Ti interessa visionare l'immobile?

Fissa un appuntamento  Fissa un appuntamento

Richiedi informazioni

Clicca su Leggi per aprire l'informativa
* Questi campi sono obbligatori

Calcola il tuo mutuo

Semplice e senza impegno
Anticipo

( % )
Mutuo

( % )

pochi semplici passi

inserisci i tuoi dati
Questionario completato
Grazie per aver richiesto un appuntamento senza impegno con un nostro Consulente del Credito e Assicurativo.

Hai inserito correttamente tutti i dati necessari e a breve riceverai una e-mail con un link da convalidare per inviare i tuoi dati.
Affiliato
Il Trovatore Immobiliare Srl
Via Spezia, 70/E 43044 Collecchio (PR)

Il nostro staff


  • Alessandro Bartolini
    Affiliato

  • Lisa Bartolini
    Affiliata

  • Valentina Accorsi
    Coordinatrice

  • Alessandro Perrotta
    Collaboratore

  • Elena Raimondi
    Responsabile
Via Spezia, 70/E 43044 Collecchio (PR)
Zona: Collecchio-Ozzano- Gaiano-Lemignano-San Martino Sinzano-Madregolo
Mostra su mappa
Orari: Da LUNEDI' a VENERDI' dalle 9:00 alle 13:00 de dalle 15:00 alle 20:00. SABATO mattina 9:00 alle 13:00 - Pomeriggio su appuntamento
Affiliato
Il Trovatore Immobiliare Srl
Via Spezia, 70/E 43044 Collecchio (PR)

2026 Tecnocasa Franchising S.p.A. - P. IVA 08365160152 - Via Monte Bianco 60/A 20089 Rozzano (MI). Ogni agenzia ha un proprio titolare ed è autonoma. Privacy policy | Policy utilizzo | Cookie policy